디자인랩소소 건축사사무소의 새 멤버를 구합니다.
디자인랩소소는 파주 출판도시 내에 위치하고 있으며, 다양한 작은 건축물들을 설계하고 감리합니다. 디자인랩소소는 아주 특별한 보통의 것을 통해 특별한 일상을 선물하는 건축을 만들어갑니다. 세심하고 다정하며, 단단하고 부드러운 당신과 함께하고 싶습니다.
■ 모집대상
- 디자이너: 경력 1~3년차 (3년차 이하)
■ 지원자격
- 건축학과 설계전공 졸업자
- 소규모 사무실에서 계획, 허가, 실시설계, 감리 경험자 우대
■ 1차 서류
> 이력서, 자기소개서
: 자유형식, 희망연봉, 사용프로그램
> 포트폴리오
: 학생시기 + 실무시기 등 자유로이 4~5개 프로젝트
: 팀작업은 본인이 수행한 업무를 상세히 기술
: 실무시기에 본인이 작업한 도면 첨부 바람
※ 이력서, 자기소개서, 포트폴리오 묶어서 pdf/20MB 이하
■ 근무조건
- 4대보험 및 기본사항 준수
- 급여: 면접시 협의 (희망연봉 기재)
- 근무시간: 10:00~19:00 (야근지양)
■ 문의/제출: yo2n.jang@gmail.com (전화문의는 받지 않습니다)
■ 회사위치: 경기도 파주시 회동길 77-4, 305호
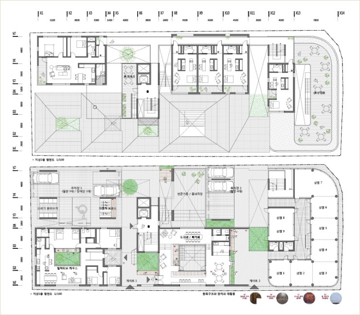
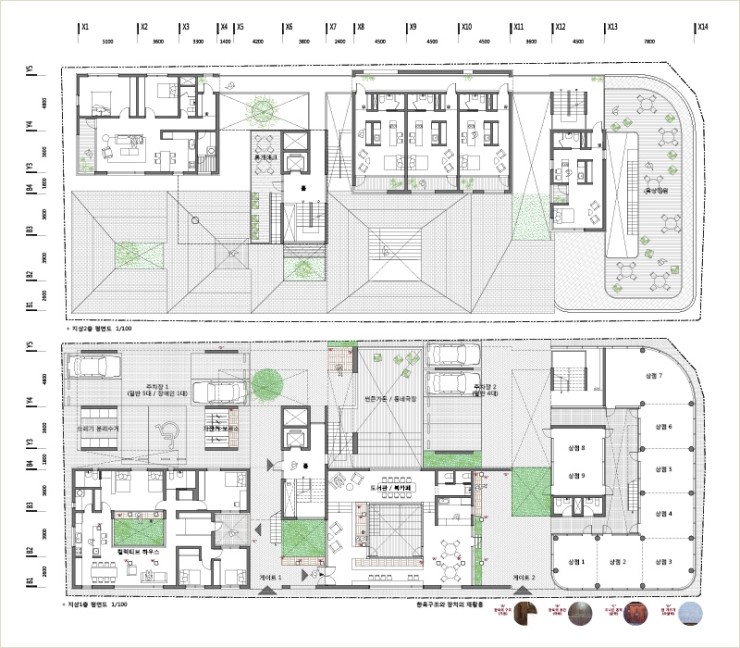
GaGaHoHo_arumjigi competition_2014
2020. 12. 6. 21:03ㆍProject/unbuilt
++ 이전 홈페이지에 있던 글을 그대로 가져왔습니다.
이 공모전을 할 때는 몰랐지요. 두 번째 사무실이 이 공모전의 대지일 줄은. ㅎㅎㅎ
오랜만에 정말 즐겁게 으쌰으쌰 작업했던 프로젝트였습니다.
많은 제한이 없는 공모전이어서 그럴 수도 있었겠지만,
수평적인 관계에서 함께 머리 맞대고 고민하는 것의 즐거움이 무엇보다 컸다 생각합니다.
반짝반짝했던 시간이었습니다.
당선이 되고, 상금까지 받았다면 더 좋았을테지만
이 곳에 남길 수는 있으니, 뭐, 영 쓸데없는 짓을 한 것은 아니겠지요.
- 소소의 장소장과, 이전 직장 동료들이었던 다른 소장님 두 분과 함께 진행했던 프로젝트였습니다. -















'Project > unbuilt' 카테고리의 다른 글
| Louis Park Masterplan (민간 현상) (0) | 2025.08.05 |
|---|---|
| 향남산단 복합문화센터 현상설계 (0) | 2025.08.05 |
| 철도 어린이집 현상설계 (0) | 2021.07.21 |
| 도레미 어린이집 현상설계 (0) | 2021.07.21 |
| 성북동 협소주택 _ 기획설계 (0) | 2020.12.07 |